Das geschieht im Moment

Hier werden Sie über laufende Planungen informiert.

 

Komplette Planung auf Anfrage:


Sie erhalten sämtliche Grundrisse, Schnitt und Ansichten,

Wohn- und Nutzflächen, umbauter Raum, Baukosten, Baunebenkosten.

 

Die Baukosten beinhalten alle Gewerke einschl. Bodenbeläge, Fliesen- und Malerarbeiten, basierend auf eigener Baubeschreibung.

 

Die Baunebenkosten beinhalten alle Architektenleistungen (Baugesuch, Werkplanung, Objektüberwachung), Tragwerksplanung, Vermessungsleistungen, Energiepass.

 

In den Kosten nicht enthalten:

Grundstückskosten, Außenanlage (Garage, Pflasterarbeiten für Stellplatz, Hauszugang, Terrasse). Die Außenanlage wird von mir im Baugesuch mitgeplant.

 

Aktuell:

 

EFH in Forchtenberg-Ernsbach, Südhanglage, herrliche Aussicht über das Kochertal!

 

Mehr auf Anfrage!

 

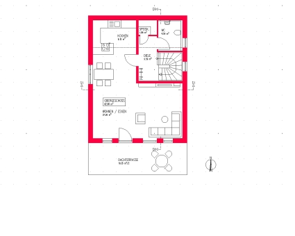
Grundriss OG und Ansicht Süd:

Einfamilienhäuser


Planungen auf Anfrage!

 

Beispiele:

 

Einfamilienhaus 1

 

Wohnfläche ca. 165 m² (einschl. Hobbyraum im UG mit ca. 21 m²),

Nutzfläche im UG ca. 17 m² (teilunterkellert):

 

Einfamilienhaus 2

 

Wie EFH 1, aber mit Pultdach, Dachneigung acht Grad.

In manchen Neubaugebieten sind Pultdächer (PD) mit Dachneigungen von ca. 8 bis 15 Grad zulässig.

 

Das ergibt hier die Möglichkeit, eine Dachterrasse zu verwirklichen.

 

Anbei die Ansichten Süd und West und der Grundriss des Dachgeschosses.

Doppelhaus 1

 

Wohnfläche 149 m²,

Doppelhaus mit Pultdach.

 

EG und Schnitt.

Doppelhaus 2

 

Wohnfläche 169 m²,

Satteldach, DG als Studio ausgebaut.

 

Schnitt und Ansicht Nord.

Doppelhaus 3

 

Wohnfläche 164 m²,

 

Ansicht Süd.

Reihenhäuser

 

Im Prinzip lassen sich alle Doppelhäuser mit geringen Änderungen für das Mittelhaus umplanen.

 

Die Reihenendhäuser entsprechen den Doppelhaushälften.

 

Als Beispiel ein EG.